Construction d’une maison dans la pente
Le site : un terrain très pentu orienté au nord
Un terrain comme on en trouve tant en Corse. Une forte pente, une orientation principale sur le village et sur le nord, il faut donc aller cherche le sud et la vue mer sur le haut du terrain. Nous proposons une maison dans la pente, avec des paliers à demi-niveaux.
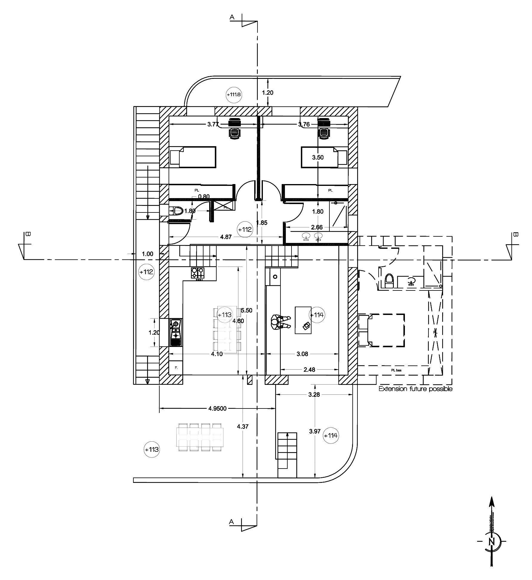
Le parti architectural : une maison dans la pente qui s’installe par demi-niveaux.
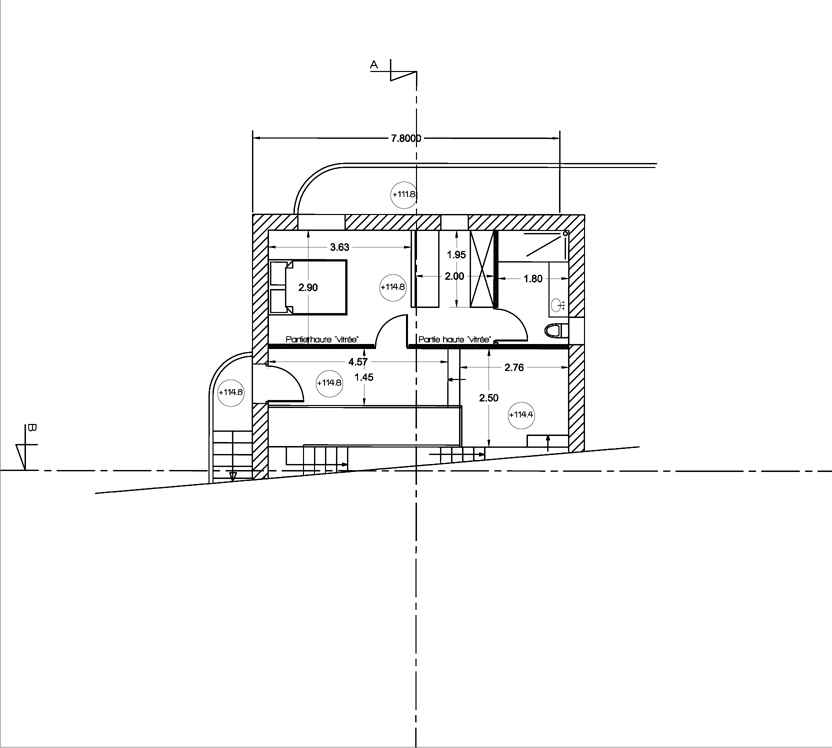
Le plan s’organise dans la coupe, le projet se déroule au fil des escaliers, intérieurs et extérieux. Le soubassement devient alors garage, tandis qu’au premier niveau, l’entrée et les chambres des enfants s’ouvre sur le village. Après quelques marches on arrive sur un premier palier, dans la cuisine familiale. Puis quelques marches supplémentaires pour accéder au salon qui s’organise autour de la cheminée et de la vue. Car à ce niveau, la maison s’oriente plein sud, avec de grands baies vitrées pour profiter des bienfaits des apports solaires et de la vue mer. Les dernières marches permettent d’accéder à la suite parentale, et à l’extérieur à l’escalier menant au toit terrasse, largement ouvert sur le sud et la vue. C’est en quelque sorte une maison escalier.
La façade au Nord, qui donne sur le village, conserve un aspect de maison de village, simple, avec des ouvertures verticales, et un toit monopente. Au sud, la maison s’inscrit dans une architecture contemporaine, avec de grandes baies vitrées et un toit terrasse. Le parti reste cependant la simplicité et l’économie du projet.
