Entre restanques et bergerie, la maison des jardins
Le site, d’anciens jardins en restanques
S’inscrivant dans le socle du village, dans le périmètre d’un monument historique, le terrain se déploie en longueur, avec une grande façade à l’ouest orientée vers la vue (imprenable) sur le golfe de propriano.
Une pente dans le sens est-ouest vient rythmer le site. On devine donc à cet endroit les restes des planches anciennement plantées. C’est ici que les villageois entretenaient très certainement leurs jardins. On retient ainsi la morphologie de murs de restanques, qui servaient à soutenir les terres.
Une vocation agricole ancrée
Nous nous inspirons également de la vocation initialement agricole du terrain. On emprunte donc aux constructions agricoles la simplicité des volumes, l’Architecture de pierre et de bois, la modestie des proportions, le lien avec le paysage….
Enfin, nous inventons les codes d’une architecture vernaculaire contemporaine, qui mêlent étude de l’architecture locale et inspirations modernes.
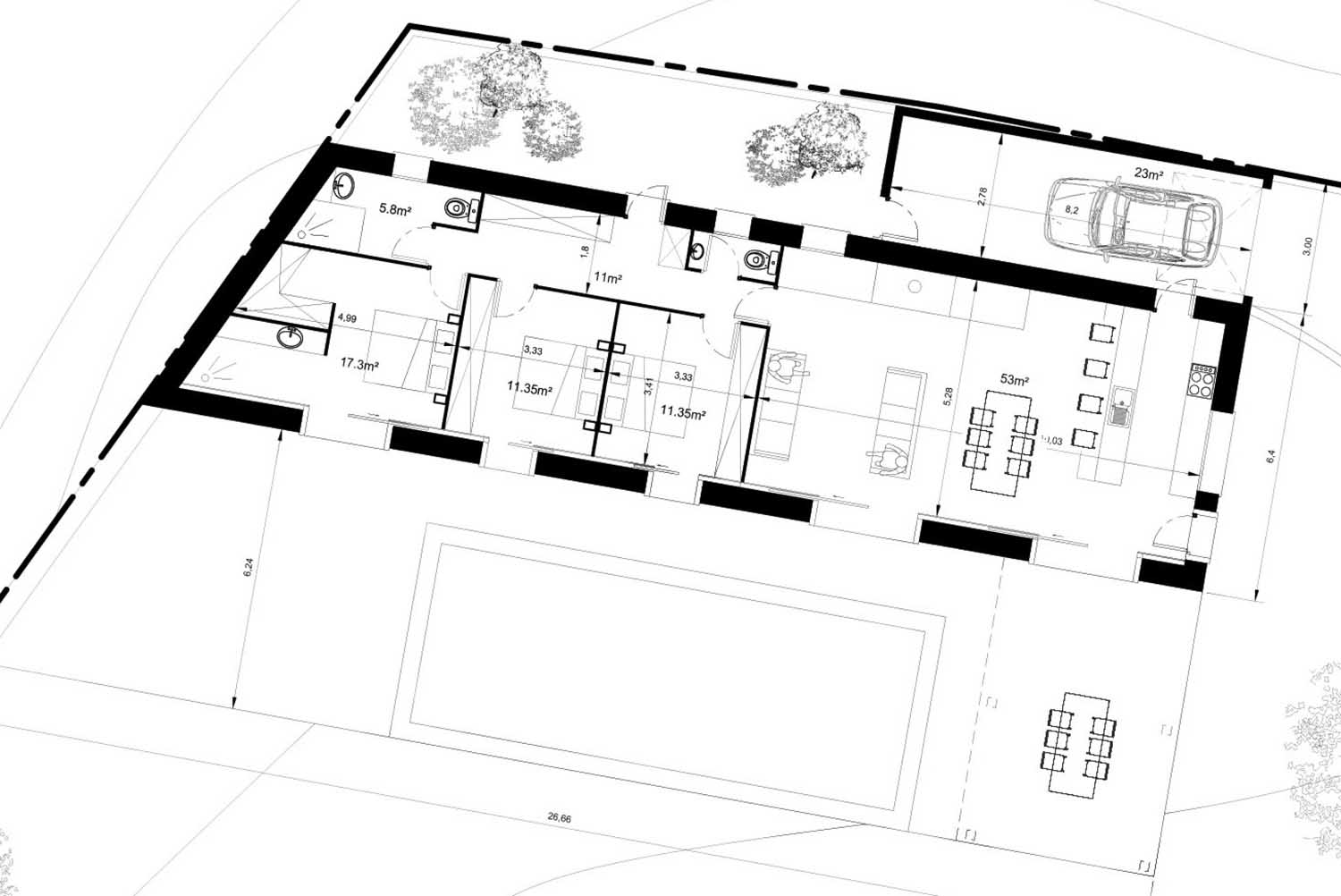
La construction
C’est donc un volume simple, sur un niveau, qui se développe en longueur pour ouvrir sa façade principale vers l’ouest. Elle s’éloigne de la limite est par l’implantation du garage et la création d’un patio. La construction est en pierre apparente sur ses deux façades visibles (ouest et sud). Au nord, elle est enduite pour des raisons économiques. Un toit deux pans se pose sur la construction. D’autre part, une surépaisseur en béton vient encadrer les fenêtres (comme les encadrements d’enduit que l’on trouve dans le village).
Les volets coulissants en bois créent un rythme et un graphisme contemporains, ouverts ou fermés.
A l’intérieur, la partie jour se développe depuis le stationnement au sud. Trois chambres dont une suite parentale créent la partie nuit.
Une grande terrasse est créée à l’ouest, en partie couverte par une pergola bois. La piscine est positionnée le long de cette terrasse.
Les matériaux naturels sont préférés, en relation avec l’esprit du lieu.
Maître d’ouvrage : Privé
SHON : 111m2
Coût estimé des travaux : 230 000 Euros
Mission : Complète
Avancement : PC accordé
Localisation : Golfe du Valinco (Corse du Sud)
