Maison à Patio
La maison à patio est située en périphérie d’Ajaccio, dans une zone d’habitat diffus.
Le terrain est de forme triangulaire. Il accuse une pente moyenne dans le sens Sud-Nord. Au nord/ouest, la vue s’oriente vers le golfe d’ajaccio, à l’est vers les montagnes. Le terrain est entouré de constructions, notamment sur la limite sud.
Le parti architectural
Les contraintes liées au site imposent donc d’ouvrir l’habitation au sud pour améliorer les performances thermiques, tout en se protégeant des vis-à-vis avec le voisinage. A l’inverse, il s’agit d’ouvrir largement des vues sur les trois autres façades.
L’Architecture de la maison s’inspire des formes des constructions méditerranéennes, de même que son architecture réinterpréte de façon contemporaine la typologie des habitats à patio. Ainsi un mur au sud , faisant partie intégrante du parti architectural, protège des vis-à-vis tout en permettant l’ouverture des façades sud.
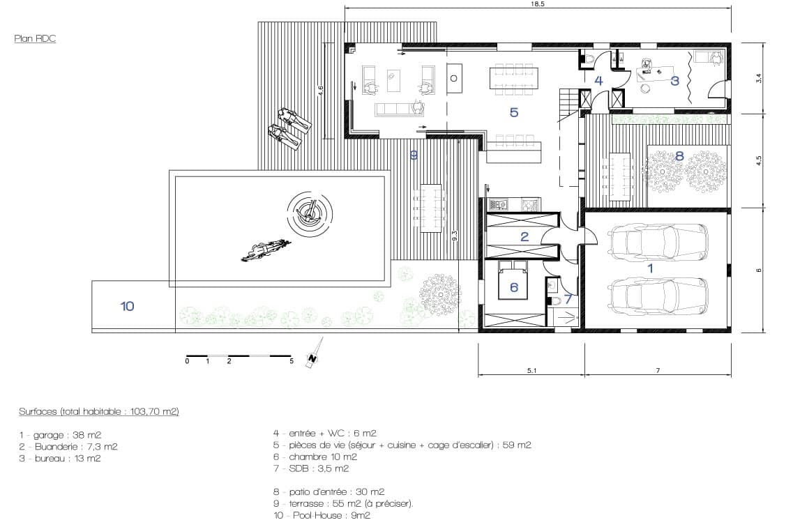
La maison s’organise donc autour de deux patios, un à l’est (entrée) sur lequel une large façade vitrée s’ouvre à l’endroit ou l’escalier permet d’accèder à l’étage. A l’ouest, les murs du patio enveloppent la piscine et les grandes terrasses. Cet aménagement extérieur se termine sur un pool house, composé de deux murs recouverts d’une dalle béton.
L’habitation se développe sur deux niveaux. Le niveau supérieur est une boîte en bois, qui pose en porte-à-faux sur la maison
Maître d’ouvrage : privé
SH : 155 m2
Surface terrain : 2500 m2
Coût estimé des travaux : N.C.
Missions : complète
Localisation : bassin ajaccien
Stade d’avancement : DET
