aménagement d’un programme mixte sur un ancien site industriel
Le site
Un ancien site industriel, au fil de la rivière, aujourd’hui démantelé est en attente d’un renouveau.
Un programme mixte pour un renouveau du site
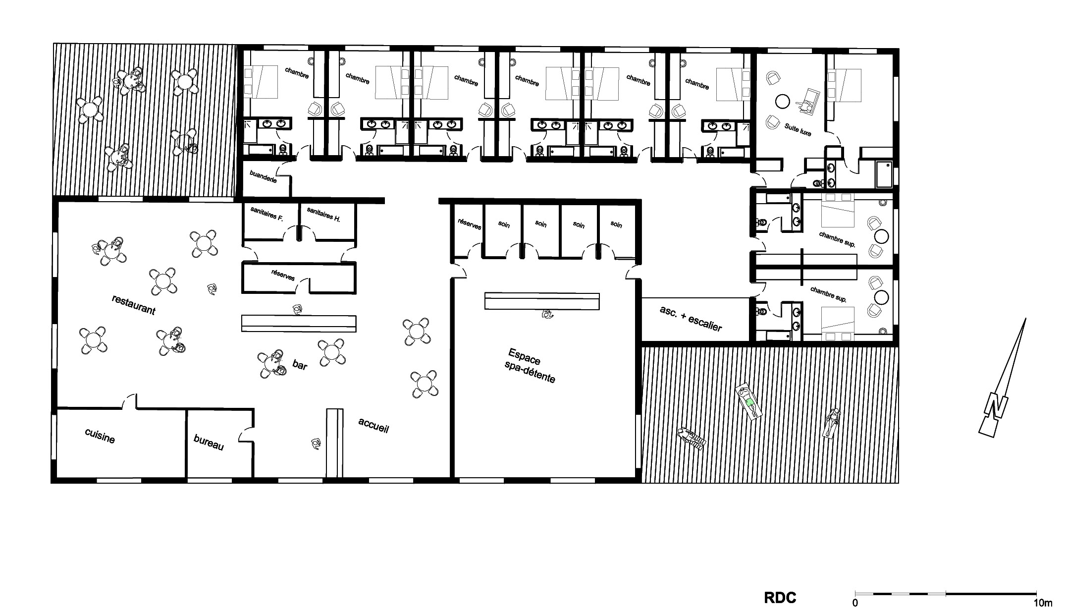
Nous conservons et restaurons les vestiges de l’activité de ce passé industriel encore présents sur le site (cheminée, centrale hydrolélectrique). De plus, nous proposons la construction d’un programme mixte : logements, structure hôtelière de standing, complexe culturel, promenade publique, stationnements. En mémoire du passé industriel, l’Architecture des bâtiments s’inspire des constructions anciennement présentes sur le site. De plus, ils s’implantent dans une même logique et densité qu’il y’a un siècle.
Une architecture résolument contemporaine et autonome en énergie
Malgré cette reconnaissance du passé, le site se tourne vers le 21 ème siècle. avec le complexe culturel qui s’érige en bâtiment signal. Son architecture naît du « mouvement de feuilles de papier », (car dans ce village la présence de l’eau a permis et permet encore la fabrication de papier à la main). Son programme est pluriel afin de répondre aux attentes de la population.
De plus, le projet devient un site pilote en complète autonomie énergétique grâce à une conception architecturale raisonnée : rénovation et remise en état de la centrale hydro-électrique , pose d’ombrières photovoltaÏques sur les parkings, production d’eau chaude solaire, mise en oeuvre d’une chaufferie bois et réutilisant la cheminée existante, utilisation des ressources locales, réflexion sur l’énergie grise utilisée.
L’Architecture se veut donc respectueuse du passé mais clairement tournée vers l’avenir, avec le respect du site monumental et de l’environnement. A noter que ce projet de programme mixte se pose aux pieds d’un grand site remarquable, au coeur de la Vallis Clausa.
Maître d’ouvrage : Privé
SH : 4500 mètres carrés
Coût estimé des travaux : Non communiqué
Missions : Etude de faisabilité
Localisation : Vaucluse, (84), France
Stade d’avancement : terminé, projet non réalisé
