Logements sociaux dans l’ancien presbytère de Bastelica
Des logements sociaux pour Bastelica
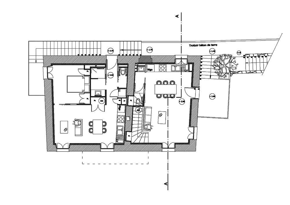
L’office Public de l’habitat, en accord avec la mairie, projette la rénovation du presbytère de Bastelica en quatre logements sociaux. L’ancien presbytère devant recevoir le programme présente les désordres dues à son âge mais aussi à son abandon progressif. Au cours des années, ce sont adjoint des terrasses et extensions grossières.
Le projet
Nous proposons d’abord de redonner à la construction son caractère villageois en démolissant l’annexe au sud. Nous créons quatre logements : deux T2, un T3, et un T3 duplex. L’accent sera mis sur la qualité de vie, l’orientation des logements, la performance énergétique, le détail de mobilier, l’accord entre le vernaculaire et le contemporain, les abords paysagers. En effet, les éléments type boîtes aux lettres ou panneaux solaires sont intégrés dans du mobilier urbain : muret végétalisé, banc, pergola… Les zones de stationnement sont paysagées. Chaque appartement possède son jardin particulier, des abris à jardin ont été spécialement imaginés afin de permettre a chacun de s’approprier son extérieur.
Nous mettons l’accent sur le vivre ensemble et la rencontre, en mettant donc l’accent sur les espaces partagés et pouvant s’approprier facilement par les occupants.
Maître d’ouvrage : Office public de l’habitat
Maîtres d’oeuvre : Atelier RnB, Sinetic, Bureau d’études Salini
Localisation : Bastelica (Corse-du-Sud)
SHON : 210 m2
Coût estimé des travaux : 450000 euros
Missions : complète
Stade d’avancement : PRO
