Transformation d’un moulin en studio
Le moulin
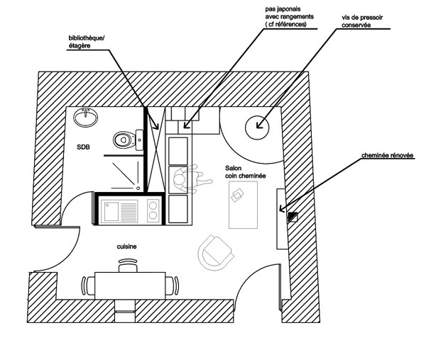
Nous vous présentons ici la rénovation d’un petit moulin et sa transformation en maisonnette. C’est un petit volume, avec un toit à une pente, exposé plein sud avec vue sur la vallée. L’espace intérieur est réduit, 20 m2 au sol, mais nous avons de la hauteur sous la partie haute de la toiture monopente. La vis de pressoir est toujours là, présente, vivante. La volonté du maître d’ouvrage est de la conserver et de respecter le volume, sans extension ni surélévation.
Un aménagement concentré pour abriter le programme
Nous créons ainsi une « boîte », en bois, qui abrite la salle de bains, un coin cuisine, et une bibliothèque. Sur le dessus de la « boîte » pose la chambre en mezzanine, dont l’accès se fait par des marches en « pas japonais » pour éviter une trop grande perte de place. Autour de la vis de pressoir et de la cheminée existante et rénovée, l’espace libéré s’organise alors en salon.
Nous avons donc imaginé des rangements astucieux, pratiques et intégrés, pour optimiser ce petit espace : bibliothèque dans le salon, l’intérieur des « pas japonais » serait des caissons vides, une grande tête de lit servant de dressing et de chevet.
Maître d’ouvrage : Privé
SH concernée : 20 m2
Coût estimé des travaux : N.C.
Mission : conception
Localisation : Corse du Sud
Stade d’avancement : travaux (hors mission Atelier RnB)
